23 метра, зато в Париже! Как вам такая маленькая квартира-трансформер? │ фото
Недвижимость в Париже — это что-то на богатом. Средняя цена метра в городе любви и романтики — около 10 000 евро. Даже скромную по метражу квартиру могут позволить себе лишь миллионеры. По этой причине во французской столице очень популярны малогабаритки. А еще там знают толк в дизайнерских ухищрениях, позволяющих разместить в маленькой «коробочке» все, что нужно для жизни. Студия Beth X Episteme доказала это на примере одного из своих проектов.
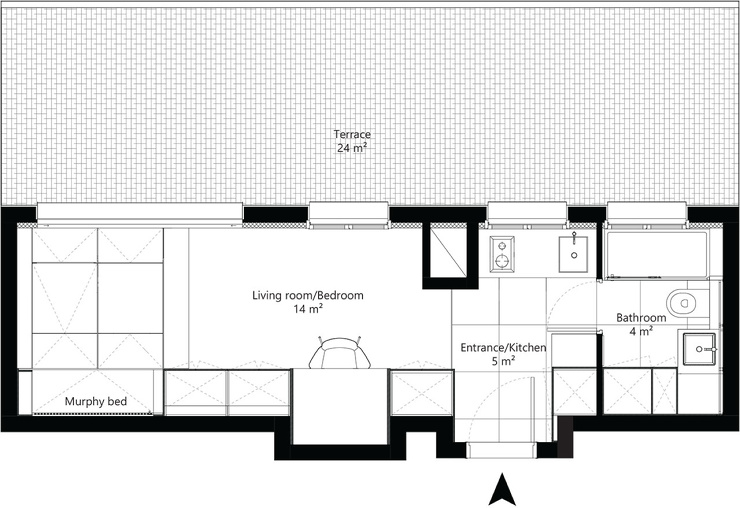
Площадь микростудии — всего 23 кв. м. Забавно, что она имеет террасу, площадь которой чуть больше самого жилого пространства. Но, как известно, на террасе жить не будешь. Пришлось умещать все необходимое внутри.
Дизайнеры зонировали территорию с помощью встроенных систем хранения и мебели-трансформеров. Вдохновением для них стала японская эстетика и стиль минимализм.
Центральный элемент в квартире — изготовленная на заказ приподнятая платформа из дерева окуме. Она служит многофункциональным ядром, вокруг которого разворачивается повседневная жизнь. Конструкция может превращаться в кровать, стол, зону отдыха. Внутри нее разместили места для хранения вещей.
Санузел:
— Каждый предмет в квартире спроектирован с учетом эффективности и гармонии, — описывает получившийся интерьер портал interior.ru. — Книжная полка легко трансформируется в изголовье кровати, а выдвижной письменный стол убирается в модуль для хранения, когда не используется. Благодаря навесной кровати-трансформеру освободить пространство можно одним движением.
Площадь микростудии — всего 23 кв. м. Забавно, что она имеет террасу, площадь которой чуть больше самого жилого пространства. Но, как известно, на террасе жить не будешь. Пришлось умещать все необходимое внутри.
Дизайнеры зонировали территорию с помощью встроенных систем хранения и мебели-трансформеров. Вдохновением для них стала японская эстетика и стиль минимализм.
Центральный элемент в квартире — изготовленная на заказ приподнятая платформа из дерева окуме. Она служит многофункциональным ядром, вокруг которого разворачивается повседневная жизнь. Конструкция может превращаться в кровать, стол, зону отдыха. Внутри нее разместили места для хранения вещей.
Санузел:
— Каждый предмет в квартире спроектирован с учетом эффективности и гармонии, — описывает получившийся интерьер портал interior.ru. — Книжная полка легко трансформируется в изголовье кровати, а выдвижной письменный стол убирается в модуль для хранения, когда не используется. Благодаря навесной кровати-трансформеру освободить пространство можно одним движением.
-7
Другие новости























Написать комментарий: